Баня из кедра ручной рубки "Алатау"

Просторная баня с открытыми бревенчатыми конструкциями кровли в интерьере и панорамным витражным остеклением в комнате отдыха.

Баня выполнена в каркасном исполнении по технологии Post&Beam. Применение данной технологии обеспечивает минимальную усадку, что позволяет сэкономить время на строительные и отделочные работы.

Характеристики:

✔ Канадская рубка, Post&Beam.

✔ 1 этаж.

Выполнен из кедра с диаметром бревна 40-46 см.

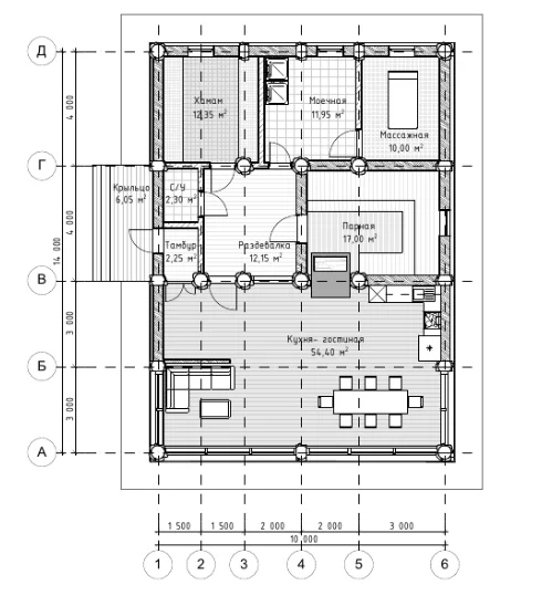
Площадь проектирования - 140 м2.

Площадь помещения - 128,45 м2.

Что входит в стоимость:

1) Силовой каркас

2) Подготовка: заготовка леса (кедр, лиственница, сосна); транспортировка леса на производственную площадку; окорка, острожка и антисептирование бревен.

3) Сборка у нас на площадке: подборка бревен для бани; рубка и тщательная подгонка чаш по Канадской технологии; сборка бревенчатой конструкции, маркировка, разборка и антисептирование бревен; погрузка в фуру для транспортировки до Вашего участка.

Что не входит в стоимость:

1) Доставка сруба до участка.

2) Сборка на участке.

3) Кровля.

4) Окна, двери.

5) Фундамент.

6) Инженерные коммуникации.