Баня Post&Beam с шахматной торцовкой

Баня выполнена из кедровой сосны с шахматной торцовкой.

Второй свет через панорамные окна на главном фасаде здания открывает красивый вид на природу и делает помещение уютным и светлым.

При бане расположена большая терраса, что позволяет наслаждаться отдыхом в кругу семьи.

Характеристики:

✔ Канадская рубка, Post&Beam.

✔ 1 этаж.

Выполнена из кедра с диаметром бревна 36-38 см.

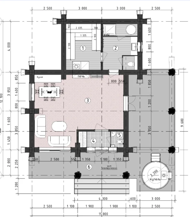
Общая площадь - 108 м2.

Общая площадь здания - 83,06 м2.

Общая площадь помещений - 58,79 м2.

Площадь террас и крылец - 49,28 м2.